Продаж квартири на вул.Личаківська 3.
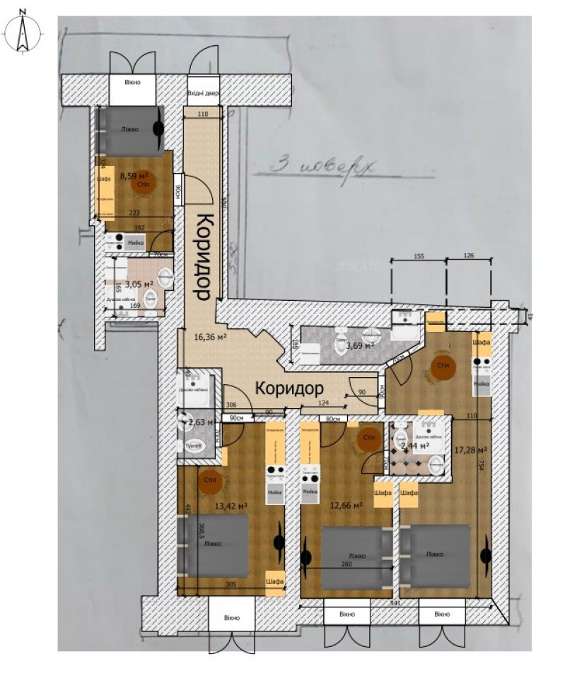
Продаж квартири в історичній частині міста Львова (50м від Львівського муру 17століття, 7хв. хотьби від площі Ринок, 16хв до Оперного театру, також навпроти будинку є зупинки трамваю з Залізничного Вокзалу та до нього- що зручно для туристів) з оригінальним ідеальним плануванням під реконструкцію з влаштуванням 4 апарт-номерів, розрахованих для гостей міста. В пішій доступності від квартири знаходяться тематичні кафе, ресторани, паби старого міста. Середньовічні мури міста, Домініканський та Бернадирсткий монастир, Костел Кларисок та Їзуїтів, Ратуша та стара бруківка дасть Вам відчути неперевершений історичний дух одного з найстаровинніших міст Європи якщо Ви станете власником квартири.
82 м.кв.
- Оновлення: 2022-05-13 15:42:55
- Адреса: Україна, Львівська область, Львів, вулиця Личаківська
- Загальна площа: 82 m2
- Право власності: Ріелтор
- Поверх/Поверховість: 3
- Вартість: 2904000 UAH
- Вартість оренди: 88000 USD
- Лічильник переглядів: 1824
Місцезнаходження на карті
Оренда під магазин/салон
- Львів, вулиця Газова
- 💸 76 000UAH
- 💸 2 000USD
- 📌 250 m2
- 1
- 1(фасадне)
Оренда квартири в центрі
- Львів, вулиця Братів Рогатинців
- 💸 24 100UAH
- 💸 600USD
- 📌 36,7 m2
- 1
- 3/4
Оренда квартири в центрі
- Львів, вулиця Братів Рогатинців
- 💸 22 100UAH
- 💸 550USD
- 📌 26,67 m2
- 1
- 3/4
Оренда квартири в центрі
- Львів, вулиця Братів Рогатинців
- 💸 20 100USD
- 📌 24,48 m2
- 1
- 3/4
Оренда квартири
- Львів, вулиця Братів Рогатинців
- 💸 13 000UAH
- 💸 350USD
- 📌 18,51 m2
- 1
- 3/4
Оренда квартири
- Львів, вулиця Братів Рогатинців
- 💸 22 100UAH
- 💸 550USD
- 📌 26,29 m2
- 1
- 3/4
| 69975.90 | USD ($) |
.jpg)
.jpg)
.jpg)
.jpg)
.jpg)
.jpg)

