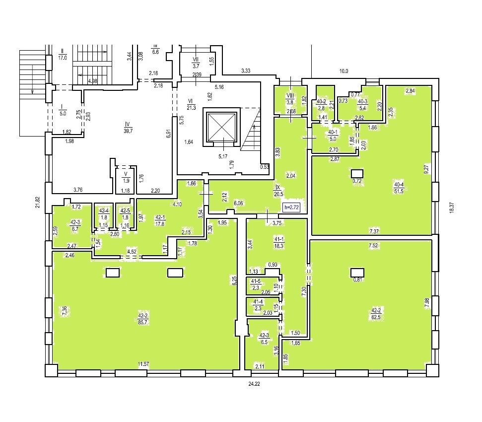
ПРОДАЖ: Нежитлове приміщення в елітному будинку КД «Люксембург» по вул. Ярославенка, 32. Закрита приватна територія. 1й поверх, окремий вхід, панорамні вікна. 295 кв.м. Ремонт під чистове оздоблення. 3 санвузла, 3 підсобки (міні-кухні), 3 великих зала open-space. Дорогі вхідні (броньовані з накладками та італ. замками) і міжкімнатні двері, стіни витягнуті гіпсом фініш під фарбування, сантехнічна та електро-розводка під розетки, сантехнічні інсталяції Geberit, опалення індивідуальне – економні конденсаційні котли Viessmann + радіатори вир. Німеччина. Стеля – витягнута, гіпсокартон, розведене освітлення, підлога – чистова стяжка, дерев’яні вікна з алюмінієвими накладками. В прим. – швидкісний інтернет, IP-домофон, розведена охоронна сигналізація, система пожежогасіння. Парковка поруч. Ціна 2500 дол./кв.м.
- Оновлення: 2022-05-03 16:44:21
- Адреса: Україна, Львівська область, Львів, вулиця Ярослава Ярославенка
- Загальна площа: 295 m2
- Право власності: Ріелтор
- Вартість: 24337500 UAH
- Вартість оренди: 737500 USD
- Лічильник переглядів: 1750
Місцезнаходження на карті
-
Індивідуальне опалення
-
Інтернет
-
Ліфт
-
Паркінг
Оренда під магазин/салон
- Львів, вулиця Газова
- 💸 76 000UAH
- 💸 2 000USD
- 📌 250 m2
- 1
- 1(фасадне)
Оренда квартири в центрі
- Львів, вулиця Братів Рогатинців
- 💸 24 100UAH
- 💸 600USD
- 📌 36,7 m2
- 1
- 3/4
Оренда квартири в центрі
- Львів, вулиця Братів Рогатинців
- 💸 22 100UAH
- 💸 550USD
- 📌 26,67 m2
- 1
- 3/4
Оренда квартири в центрі
- Львів, вулиця Братів Рогатинців
- 💸 20 100USD
- 📌 24,48 m2
- 1
- 3/4
Оренда квартири
- Львів, вулиця Братів Рогатинців
- 💸 13 000UAH
- 💸 350USD
- 📌 18,51 m2
- 1
- 3/4
Оренда квартири
- Львів, вулиця Братів Рогатинців
- 💸 22 100UAH
- 💸 550USD
- 📌 26,29 m2
- 1
- 3/4
| 586445.78 | USD ($) |
.jpg)
.jpg)
.jpg)
.jpg)
.jpg)
.jpg)
.jpg)
.jpg)
.jpg)

